DENCITY CROSS SITE 6階

安城市

シェアオフィス

オフィス

2F シェアオフィス

オープンスペース

個室(2~6名)

物件種目 貸事務所
賃料 【B】123,200円(税込)/月額
【C】468,600円(税込)/月額
【B・C】591,800円(税込)/月額
共益費 賃料に含む/月額
保証金 賃料の8か月分
礼金 なし
駐車場 【別契約】1台 13,200円(税込)/月額~
所在地 愛知県安城市末広町8番4号
交通手段 JR東海道本線「安城」徒歩約6分
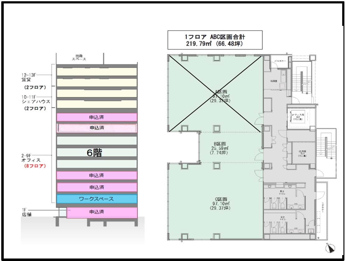
構造規模 鉄骨造13階建 5階部分
床面積 【B】25.59㎡(7.74坪)
【C】97.10㎡(29.37坪)
築年月 令和4年3月
現況 【B】空き/【C】空き
引渡日 相談
設備

・エレベーター
・共用部男女別トイレ
・共用部給湯室

備考

・20年間の定期建物賃貸借契約
・別途要火災保険加入
・保険会社(全保連)との保証委託契約を結んでいただく場合があります

お問い合わせフォーム


    (法人の方は必ずご記入ください)

    お問い合わせ種類

     

    お問い合わせはこちらから

    お電話

    企業様

    個人様